Tổng Quan Dự Án Tủ Bếp Chữ L Nhà Phố Quận 7
Chủ đầu tư: Chú Thắng
Loại hình: Bếp Chữ L MDF
Vị trí: Quận 7, Phường Tân Thuận, TP. HCM
Hạng mục: Thiết kế & thi công tủ bếp
Hiện Trạng Trước Thi Công
Căn bếp cũ trước khi thi công cho thấy dấu hiệu xuống cấp rõ rệt: hệ tủ bếp đã cũ, màu sơn ngả vàng, bề mặt dễ bám bẩn và thiếu sự đồng bộ về thiết kế. Khu vực lưu trữ còn hạn chế, khiến vật dụng phải đặt rời rạc trên kệ inox và mặt bàn. Không gian tổng thể tuy sạch sẽ nhưng chưa tối ưu về thẩm mỹ và công năng – đây chính là lý do cần một thiết kế tủ bếp mới hiện đại, gọn gàng và tiện nghi hơn.

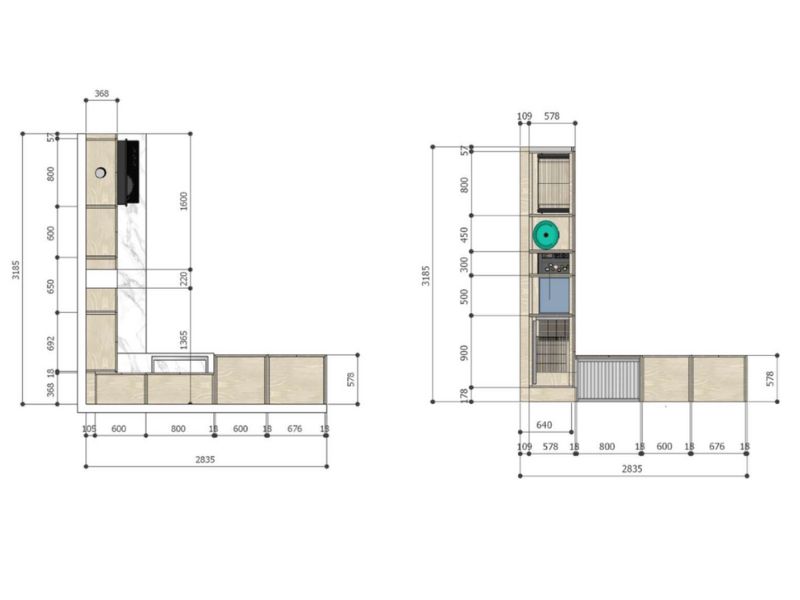
Bản Vẽ Mẫu Và Báo Giá Tủ Bếp Chữ L Nhà Phố
Sau khi khảo sát thực tế, Caesar nhận thấy không gian bếp cũ có nhiều hạn chế: tủ bếp xuống cấp, bố cục thiếu khoa học và chưa tận dụng tối đa diện tích. Đội ngũ thiết kế của Caesar đã nghiên cứu kỹ mặt bằng, từ đó đưa ra giải pháp tối ưu với hệ tủ bếp chữ L nhà phố hiện đại, sử dụng vật liệu gỗ công nghiệp chống ẩm cao cấp, kết hợp mặt đá vân marble giúp căn bếp trong sang trọng và hiện đại hơn.

Từ bản vẽ chi tiết, Caesar nhanh chóng hoàn thiện bản mẫu phối cảnh 3D cùng báo giá rõ ràng, đảm bảo tính thẩm mỹ, công năng và chi phí phù hợp cho gia chủ — mang đến diện mạo hoàn toàn mới cho căn bếp.

Thi Công Hoàn Tất Tủ Bếp Chữ L

Không chỉ dừng lại ở bản vẽ, Caesar hiện thực hóa từng chi tiết trong không gian bếp – từ đường nét tinh gọn đến sắc trắng trang nhã. Mỗi công trình là sự kết hợp giữa thẩm mỹ hiện đại và chất lượng thi công chuẩn xác. Mang đến một căn bếp tiện nghi, bền đẹp và tràn đầy cảm hứng sống.

- Hotline: 091 729 97 82 – 091 729 97 84
- Website: tubepnoithatcaesar.vn
- Facebook: facebook.com/caesarcabinets
- TikTok: tiktok.com/@caesar_vietnam
- Youtube: youtube.com/@tubepcaesar
- Email: marketing@caesar.com.vn
- Showroom1: 453 Lý Thường Kiệt, Phường 8, Quận Tân Bình, TP Hồ Chí Minh
- Showroom 2: Tòa GH2 Glory Heights Vinhomes, Thủ Đức, TP Hồ Chí Minh

